Constructieberekening aanbouw
Een aanbouw lijkt op papier eenvoudig, maar constructief is geen project gelijk. Bij elke doorbraak, fundering of dakconstructie komen krachten vrij die precies moeten worden berekend. Een constructieberekening aanbouw of uitbouw bepaalt hoe sterk de draagbalk, vloer en fundering moeten zijn en voorkomt dat muren scheuren of verzakken.
Bij Verbouw-Gigant werken wij sinds 1989 met ervaren constructeurs die volgens de huidige BBL-richtlijnen en Eurocode-normen berekenen. Wij leveren niet alleen een rapport, maar ook complete constructietekeningen, detaildoorsnedes en krachtendiagrammen waarop precies te zien is hoe elke belasting wordt afgevoerd. Vraag uw constructieberekening hieronder aan. Wij zullen contact met u opnemen ende constructieberekening voor u maken.
Doorsnede appartementen complext met de onderste woning laag een aanbouw constructieberekening.
Waarom een constructieberekening essentieel is
Zodra u een dragende muur doorbreekt, een uitbouw met dakconstructie toevoegt of de fundering aanpast, is een berekening verplicht.
De gemeente eist dit bij elke vergunningsaanvraag om de veiligheid van uw woning te garanderen. Ook bij een Gemiddeld 5 tot 10 werkdagen, afhankelijk van complexiteit en revisies. is een berekening nodig om te bepalen hoe de belasting wordt gedeeld.
Onze constructeur berekent:
- de belasting per m² van vloeren, wanden en daken;
- de draagkracht van staal- of betonbalken;
- de puntlasten op fundering of heipalen;
- de doorbuiging van draagbalken en liggers;
- en de krachten in geveldoorbraken.
Een goed uitgevoerde constructieberekening voorkomt latere schade, maar versnelt ook de vergunning aanbouw, omdat alle waarden en details voldoen aan de eisen van de bouwinspecteur.
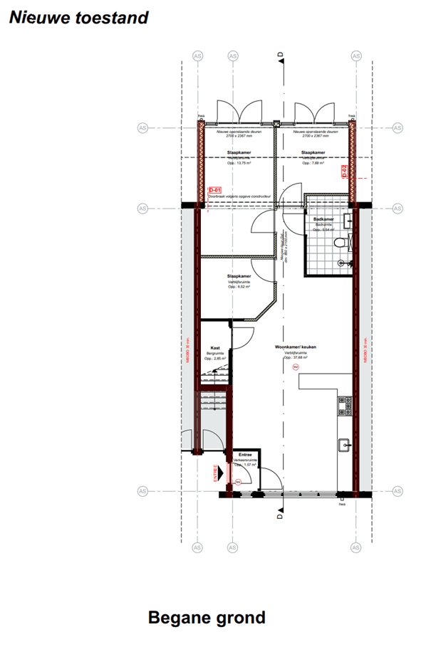
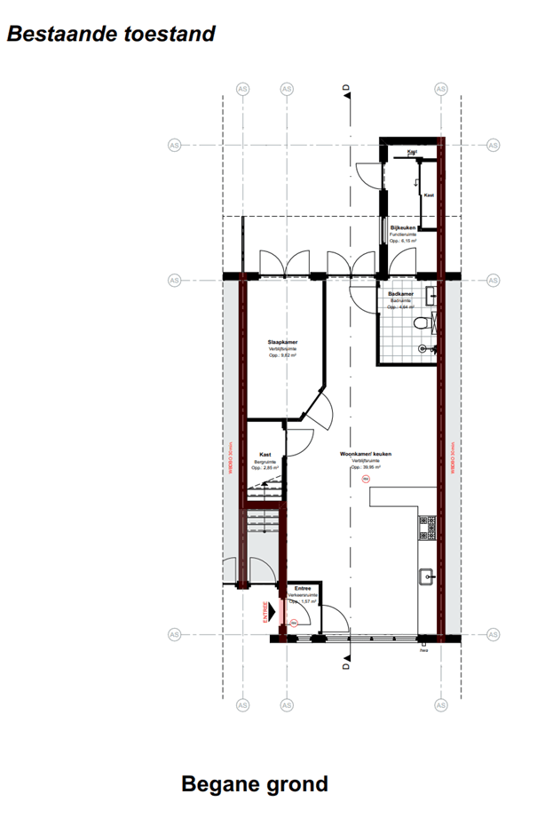
Constructieberekening oude toestand (zonder aanbouw) en nieuwe toestand (met aanbouw)
Samenhang met andere technische onderdelen
De constructieberekening vormt het hart van de technische voorbereiding. De gegevens worden gebruikt bij de fundering uitbouw (voor de juiste palenafstand), bij de staalconstructie uitbouw (voor de juiste profielen en portalen) en bij de berekening van de dakconstructie uitbouw. Wanneer de berekening compleet is, volgt het stempelplan: dat geeft aan waar tijdelijk stempels en liggers moeten komen tijdens de geveldoorbraak.
Daarna kan veilig worden gestart met het vervangen van de draagmuur door een staalportaal of betonnen ligger.
Wat kost een constructieberekening voor een aanbouw
De kosten van een berekening hangen af van de complexiteit. Een eenvoudige aanbouw van 3 × 4 meter zonder doorbraak vraagt minder werk dan een uitbouw met een dubbele overspanning en staalportaal. Onderstaande tabel toont de hoge realistische marktprijzen in 2026.
Constructieberekening prijsindicaties
| Type berekening | Gemiddelde prijs 2026 | Inbegrepen onderdelen |
|---|---|---|
| Basisconstructieberekening | € 650 – € 950 | Lichtgewicht aanbouw, geen doorbraak |
| Berekening met enkele doorbraak | € 950 – € 1.400 | Draagbalk en geveldoorbraak met stempelplan |
| Berekening met dubbele doorbraak | € 1.400 – € 2.100 | Twee portalen, fundering en krachten geveldoorbraak |
| Volledige aanbouw incl. fundering en staalconstructie | € 2.100 – € 3.000 | Fundering koppelen, draagmuur vervangen staalportaal, berekening dak |
| Constructieberekening + revisietekening | € 450 – € 700 extra | Herziening tijdens bouw of bij afwijking |
De meeste klanten investeren in een berekening met doorbraak of staalportaal, omdat dat de sterkte van de gevel garandeert en de vergunningprocedure versnelt. Uit ervaring weten wij dat een complete berekening zich dubbel terugbetaalt, minder herstelkosten, minder risico op scheurvorming, en volledige garantie op de constructie. Vind hier de algemene aanbouw kosten.
Doorsnede aanbouw grafische weergave technische tekening
Technische tekeningen en berekeningsonderdelen
Bij de berekening hoort altijd een constructietekening uitbouw of bouwtekening aanbouw maken, waarop te zien is waar de draagbalk, stalen ligger en fundering samenkomen. Wij leveren detailtekeningen met snedes, lastenverdelingen en wapening. Daarin staan onder andere:
- de dikte en wapening van de vloer;
- de positie van staalprofielen (HEA, HEB, IPE);
- de afmetingen van de fundering en betonbalken;
- de belasting van de dakconstructie;
- de plaats van contrabalken bij zwakke ondergrond.
Deze tekeningen worden door onze constructeur afgestemd met het stempelplan uitleg en de krachtsberekening geveldoorbraak, zodat alles klopt vóór de eerste steen wordt verwijderd.
Hoe wordt een constructieberekening technisch opgebouwd
Een constructieberekening voor een aanbouw of uitbouw bestaat uit drie fasen: belastinganalyse, krachtenverdeling en materiaaltoetsing. Onze constructeur berekent eerst de verticale belastingen (het gewicht van dak, wanden en vloeren) en de horizontale belastingen (wind- en trekkrachten).
Daarna wordt bekeken hoe die krachten worden afgedragen op de aanbouw fundering.
Bij een geveldoorbraak uitbouw voeren wij een krachtsimulatie uit. De draagbalk boven de opening krijgt te maken met buiging, afschuiving en doorbuiging. Die waarden worden vervolgens getoetst aan de sterkte van het staalprofiel (HEA of HEB) en de druksterkte van het metselwerk eronder.
Is de draagmuur zwak of de overspanning te groot, dan kiezen we een staalportaal met kolommen. Het gewicht van dat portaal loopt via contrabalken fundering en heipalen naar de bodem. Daarmee sluiten wij aan op de bestaande fundering uitbouw, zodat de belasting gelijkmatig wordt verdeeld.
Constructieberekening aanbouw met uitleg
Technische berekeningsonderdelen en waarden
Onderstaande tabel laat zien welke onderdelen standaard in een constructieberekening uitbouw zijn opgenomen en wat de actuele richtprijzen zijn in 2026.
Onderdelen constructieberekening aanbouw
| Onderdeel berekening | Gemiddelde prijs 2026 | Opmerking / functie |
|---|---|---|
| Geveldoorbraak berekening | € 450 – € 750 | Incl. belasting, vervorming en draagmuur vervanging |
| Dakconstructie aanbouw | € 300 – € 600 | Bepaling liggerafstand, overspanning en windbelasting |
| Stempelplan opstelling | € 250 – € 500 | Tijdelijke steunpunten bij sloop en doorbraak |
| Funderingstoets en belastingverdeling | € 400 – € 800 | Controle draagkracht bodem en paalafstand |
| Staalportaal berekening | € 700 – € 1.200 | Bij dubbele doorbraak of brede overspanning |
| Volledige uitbouw berekening (compleet) | € 2.200 – € 3.200 | Inclusief fundering koppeling, staal en garantie |
Deze waarden worden door onze constructeur vastgelegd in de berekening en gecontroleerd volgens de Eurocode 3 en 5. Daarmee voldoen onze rapporten aan de eisen voor de vergunning aanbouw en zijn ze direct te gebruiken in het dossier voor de gemeente.
Veelgebruikte staalprofielen en berekende krachten
Bij de berekening van een uitbouw draagconstructie en techniek gebruiken wij verschillende profielen, afhankelijk van overspanning en belasting. De tabel hieronder laat zien welke profielen het vaakst voorkomen en welke maximale overspanningen haalbaar zijn.
| Type profiel | Max. overspanning | Toepassing | Indicatieve prijs 2026 |
|---|---|---|---|
| HEA 160 | 3,5 – 4,5 m | Kleine geveldoorbraak of lichte aanbouw | € 950 – € 1.400 |
| HEB 200 | 4,5 – 5,5 m | Gemiddelde uitbouw, standaard draagmuurvervanging | € 1.200 – € 1.800 |
| IPE 300 | 5,5 – 7 m | Lange overspanning of dubbele doorbraak | € 1.800 – € 2.500 |
| Staalportaal (2 kolommen + ligger) | tot 8 m | Volledige gevelvervanging met draagmuur verwijderd | € 3.500 – € 6.000 |
Uit ervaring weten wij dat veel bestaande woningen in plaatsen als Delft, Hoofddorp, Leiden en Alphen aan den Rijn niet ontworpen zijn op extra belasting. Daarom berekenen we hier vaak extra draagkracht via een staalportaal of contrabalkconstructie, zodat ook bij uitbouw van 5 of 6 meter stabiliteit gegarandeerd blijft.
Constructieberekening aanbouw fundering
Wanneer is een constructieberekening verplicht?
Een constructieberekening is verplicht zodra een constructieve wijziging plaatsvindt, bijvoorbeeld bij het verwijderen van een draagmuur, het vergroten van een opening of het toevoegen van een dragende kolom. De BBL-normen schrijven dit voor, ook als de aanbouw vergunningsvrij lijkt.
Zonder berekening kan een aannemer geen verzekering of garantie afgeven op de constructie.
In de praktijk zien wij vaak dat de berekening pas wordt aangevraagd ná de vergunning, maar dat zorgt voor vertraging. Wij adviseren dit direct te doen na de bouwtekening, zodat de vergunning aanbouw sneller wordt goedgekeurd.
Expertvisie van Verbouw-Gigant
Volgens Jouke de Groot, Verbouw-Gigant, wordt in 2026 meer nadruk gelegd op veiligheid en energienormen:
- “De tijd van snelle schattingen is voorbij. Gemeenten controleren nu actief op fundering, draagmuurvervanging en stempelplan. Een correcte berekening bespaart later duizenden euro’s.”
Hij benadrukt dat moderne software, gecombineerd met praktijkervaring, erg belangrijk blijft:
- “Wij rekenen niet alleen digitaal, maar controleren elke krachtverdeling handmatig. Dat verschil zie je terug in de levensduur van de aanbouw.”
Met honderden succesvolle aanbouwen sinds 1989 bewijst Verbouw-Gigant dat techniek en uitvoering hand in hand gaan. Wij zorgen dat elke aanbouw veilig, berekend en gegarandeerd wordt opgeleverd, met garantie op de constructieve delen.
Aanbouw projecten door heel Nederland
FAQ constructieberekening aanbouw
Reken op € 600 – € 1300 voor een standaard aanbouw met doorbraak. Bij complexe situaties met staalportaal of heipalen loopt dit op tot circa € 3.000.
Ja, zodra u dragende muren, fundering of dakconstructie aanpast, is deze berekening verplicht volgens het BBL
Een schets mag, maar zonder constructieberekening wordt geen vergunning verleend. Wij kunnen de bouwtekening en berekening in één traject verzorgen.
Gemiddeld 5 tot 10 werkdagen, afhankelijk van complexiteit en revisies.









